SISTEMAS LIVIANOS DE MADERA
Dentro de una clasificación inicial de sistemas livianos se pueden analizar dos
grupos:
1) Sistema de esqueleto o lineal (de tradición centroeuropea)
2) Sistema de entramado (framing)
SISTEMA DE ESQUELETO O LINEAL
Esta forma de estructura tiende a concentrar las cargas en vigas o cabriadas que a
su vez descargan en columnas. Las distancias entre columnas son de por lo menos
1,20 metros y hasta superiores. Las luces de las vigas no suelen exceder los 4
metros y as cabriadas se emplean de los 6 metros en adelante.
Sus ventajas son las siguientes:
- Permite construir en planta baja y especialmente en pisos altos.
- En cuanto al armado de la estructura en sí, economiza mano de obra y
material al ubicar a ésta donde es estrictamente necesario. Generalmente no
se requieren dinteles para puertas y ventanas.
- Permite diseños muy flexibles.
- Es ventajosa para las zonas donde la vivienda debe estar elevada, por
ejemplo, zonas anegadizas.
- Velocidad de montaje.
- Cuando se emplean cabriadas se dispone de una superficie interior
totalmente libre para disponer la tabiquería interior.
Sus limitaciones son:
- Al ser tan flexible, es frecuente la aparición de detalles especiales no
tipificados, lo cual entorpece la industialización.
- La presencia de las columnas dificulta la continuidad de las aislaciones.
- El tipo de revestimiento de las paredes está limitado por la distancia entre
columnas.
SISTEMA DE ENTRAMADO
Dentro de este grupo encontramos los sistemas Balloom frame (entramado globo) y
Platform frame (entramado plataforma).
Básicamente, en los sistemas de entramado se usan tablas de secciones reducidas
espaciadas entre 40 y 60 cm. Generalmente tienen el mismo espesor y varían en su
longitud. Con estos entramados se construyen las estructuras de muros y
entrepisos, que luego se revisten.
Baloom frame (o casa sueca): Este sistema tiene como característica principal el
largo de los parantes, que alcanzan a cubrir la totalidad de la altura de la
construcción, desde la solera de zócalo hasta la doble soleta superior que soporta
los cabios de la cubierta. Ello permite que las viguetas de entrepiso se claven a los
parantes.
Esta forma constructiva fue dejada de lado y reemplazada casi totalmente por el
Platform frame.
Platform frame (o casa inglesa): El nombre de este sistema se refiere a que los
cerramientos y entrepisos son concebidos como plataformas individuales, o
bastidores. En este caso los parantes toman la altura de un piso, apoyan sobre la
“plataforma” de base y reciben la “plataforma” del entrepiso. Si bien requiere de
doble solera superior para el apoyo del entrepiso, ya no necesita tablas tan largas.
En el detalle del encuentro de plataformas horizontales y verticales aparecen piezas
nuevas como, por ejemplo, los bloques intercalados.
Se desprende que una de las diferencias entre estos dos sistemas son las fases de
construcción. En el Balloom frame los elementos estructurales (vigas, soleras,
parantes, largueros) son continuos, debiéndose colocar uno por uno. El sistema
Platform frame tiene la ventaja de que los paneles o plataformas pueden venir
prearmados teniendo solamente que izarse y anclarse en obra para luego revestirse.
Otra ventaja es la de ofrecer plataformas de trabajo limpias para trabajar o prearmar.
La doble solera superior ofrece un corta fuego natural, que en el caso del balloom
frame hay que colocar tablas a tal efecto.
La distancia entre parantes normalmente varía entre los 40 y 60 cm, según la carga
que soporta la pared y el tipo de recubrimiento que se le colocará.
En América del norte se emplean dos procedimientos para realizar el entramado de
las paredes, uno es en la misma obra, en posición horizontal utilizando el bastidor
armado y luego e levanta (tilt up) y se coloca en su emplazamiento definitivo. La otra
forma es comprar a un proveedor los bastidores hechos y montarlos en obra.
La doble solera superior ayuda a unir los distintos bastidores al solaparse las
mismas.
Los planos de cubierta también son “bastidorizados”.
FORMAS DE TOMAR LAS FUERZAS HORIZONTALES.
Los sistemas de madera emplean en general dos tipos de arriostramiento ante las
fuerzas horizontales
1. Cruces de San Andrés
Las formas o inclinación pueden ser diversas, y dejar de ser cruces, pero el principio
es conducir el esfuerzo horizontal a sus apoyos por medio de la compresión y
tracción de elementos verticales e inclinados.
Son los más apropiados para los sistemas estructurales basados en columnas y
vigas, en los sistemas de entramado también son empleados, pero requieren un
trabajo de corte de parantes.
Las cruces de San Andrés son muy eficaces para el arriostramiento, sin embargo
eso le provoca que se concentren los esfuerzos. Esta concentración puede llevar a
tener uniones muy solicitadas y por lo tanto ser muy distintas a las del resto de los
elementos. Una forma de evitarlo es disponer una cantidad adecuada de cruces para
distribuir los esfuerzos.
Si la cruz se dispone sobre un entramado pueden emplearse tablas, que al estar
clavadas sobre los parantes disminuyen las luces de pandeo.
Se emplean también flejes de chapa de acero galvanizado, tensores de hierro
redondo o perfiles para las diagonales de tracción.
1. Tableros rígidos
Se aprovecha la capacidad de cierto tipo de tableros para tomar por corte en su
plano, las fuerzas horizontales en uno de sus extremos y conducirlos a otro. Para
ello se requieren tres condiciones mínimas:
- Resistencia al corte del material: El material del tablero debe ser resistente al
corte y su espesor adecuado a las solicitaciones. Los más utilizados son los
contrachapados, también llamados terciados compensados, que se fabrican
en diversos espesores, maderas y adhesivos, por lo tanto ofrecen distintos
valores de corte. Otro tipo de tableros son los cementicios, de fibra,
aglomerados, ofrecen diversos valores de resistencia al corte. En nuestro país
no se dispone del sistema de fabricación bajo normas para asegurar esos
valores, por lo tanto sólo podemos valernos de ensayos o de hipótesis muy
desfavorables.
- Condiciones de bordes: Deben asegurarse que el esfuerzo horizontal se
transmita al tablero y por lo tanto deberán verificar las uniones de igual
manera donde el tablero descarga, es decir, en su parte inferior. Estamos
hablando de tableros que se clavan o atornillan a las columnas, vigas o a los
entramados, esos clavos o tornillos deben asegurar el pasaje de los
esfuerzos.
- Prevenir el abollamiento (pandeo de placas): Las tensiones que se generan
en los tableros pueden hacer que estos se “abollen” o arrugen. Para evitarlo
se acotan los paños con rigidizadores, es decir, elementos que ofrecen
resistencia al pandeo del tablero. Cuando estas placas se clavan sobre los
entramados los parantes intermedios ofician de rigidizadores.
El uso de tableros o placas como arriostramientos es típico de los sistemas de
entramado donde debido a la forma constructiva y modulación de los parantes
se cumplen perfectamente las condiciones anteriores.
UNIONES MECÁNICAS CLAVADAS
La forma deseable de trabajo para estas uniones es el corte, para evitar
salidas de los clavos. La capacidad de los clavos de transmitir carga depende
de su diámetro y del tipo de madera que une. Como dato orientativo se puede
tomar que el diámetro de los clavos debe ser una décima parte del menor
espesor de las maderas a unir. La longitud del clavo debe ser tal que penetre
por lo menos 10 veces su diámetro (d) en la madera última y no menos de 7d
en la primera madera (si es contrachapado será 3d).
Cuando se clava una placa, el largo del clavo debe ser por lo menos 3 veces
el espesor de la placa y en lo posible no más grueso de 1/3 del espesor de la
placa. Por ejemplo, placas de 9 mm se clavan con clavos de 2,6 mm.
Los clavos lanceros o inclinados deben colocarse con una inclinación entre
los 30º y 45º, reduciéndose proporcionalmente su resistencia si el paso por la
primera pieza es de menos de 7d.
No se permitirán clavos de acero sin tratamiento anticorrosivo. Ni clavos de
aluminio o cobre para usos estructurales.
Estas especificaciones son válidas para estructuras de no más de 7 metros de
altura y vientos de referencia de menos de 40m/seg.
Ventajas: Es una unión económica, se usan clavadoras automáticas portátiles
y el control es sencillo.
Desventajas: Por su escasa sección requiere gran número de clavos para
resistir esfuerzos importantes.
Chapas y multiclavos.
Son una extensión de las uniones clavadas y resuelven, aprovechando la
resistencia de la chapa, uniones que serían demasiado complicadas con
clavos.
Los clavos que atraviesan estas chapas resisten un 25% más. Las chapas
deben ser galvanizadas y de por lo menos 1,2 mm de espesor.
Los conectores, o chapas que traen incorporados sus propios clavos, se rigen
por normas que especifica el fabricante a través de ensayos.
Pernos y tornillos.
Los tornillos ofrecen una resistencia al arranque de dos a tres veces mayor
que la de los clavos, y permiten el desmontaje.
El largo de perno o bulón debe ser tal que sobresalga por lo menos una vuelta
de rosca después de la tuerca. Se deben usar arandelas para la cabeza y
para la tuerca. Como valor orientativo del diámetro del perno se debe tomar
un tercio del espesor de las maderas a unir.
Los pernos son elementos auxiliares como los conectores (platos dentados,
anillo partido, etc.) permiten aumentar la capacidad de la unión y según su
diseño, evitar su rotación. Es de fundamental importancia evitar la corrosión
de los elementos de unión.
Encoladas
Las uniones encoladas permiten aprovechar mejor la madera y transmiten
completamente los esfuerzos de corte. El ideal es hacerlas en fábrica, donde
se pueden controlar. Se debe asegurar que la cola empleada sea resistente a
la humedad y a los ataques biológicos.
Uniones encoladas
Encastradas
Este tipo de uniones que trabaja por forma, necesita complementarse con
alguna de las fijaciones anteriores para inmovilizarla.
Uniones encastradas
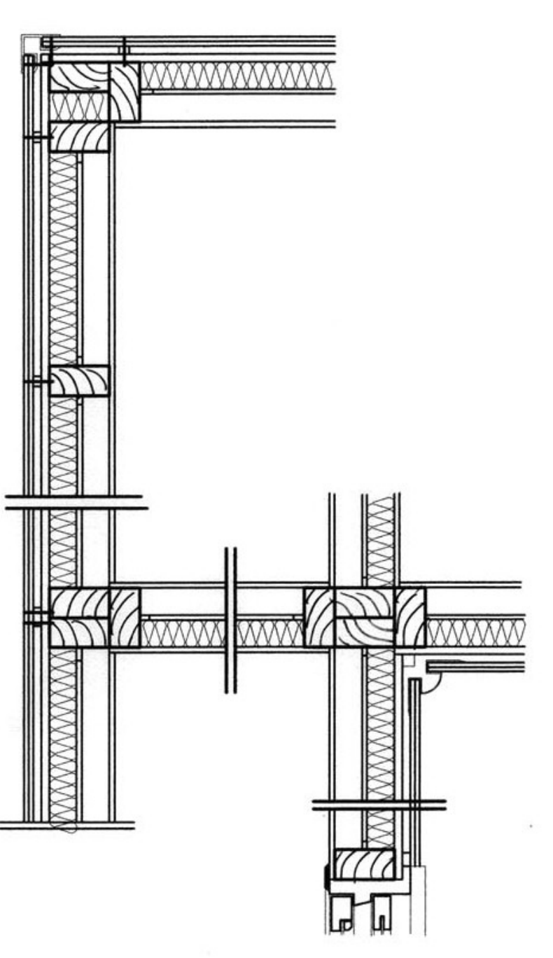
DETALLES ENCUENTROS
FUNDACIÓN
BALCÓN EXTERIOR
TERRAZA
PLANTA
TECHO
TECHO FRÍO Y TECHO CALIENTE.
Las cubiertas livianas se pueden clasificar según la ubicación del aislante
térmico en: techos fríos y techos calientes.
En los techos fríos el aislante térmico está ubicado sobre el cielorraso,
generándose entre la cubierta y el aislante una cámara de aire. El aire de esta
cámara está a temperatura exterior y toma el contenido de vapor de agua del
aire exterior, restringiéndose así el flujo térmico hacia fuera, por esta razón
debe estar ventilada. Esto último se logra colocando aberturas en los
tímpanos o en los aleros y en la cumbrera, y el recorrido del aire debe ser
continuo y no encontrar obstáculos intermedios.
En los techos calientes, el aislante térmico se coloca entre la cubierta y la
superficie interior (entablonado sobre los cabios), estando siempre protegido
por el aislante hidrófugo y la barrera de vapor. Este techo requiere especial
atención en l disposición de las canaletas y los desagües. En este caso se
genera un ático cuyo aire está a temperatura interior, pudiendo haber o no
cielorraso.
SIST ENTRAMADO DE MADERA Conceptos.pdf
browser_emoji Estamos procesando este archivo...
browser_emoji Lamentablemente la previsualización de este archivo no está disponible. De todas maneras puedes descargarlo y ver si te es útil.
Descargar
. . . . .