
Elección de cantidad y diámetro de barras. Separación máxima
El diámetro mínimo de las barras utilizadas en bases superficiales es 10mm (Ø10) y
a separación máxima entre barras será:
Separación máxima
s
25 Ø 25 veces el diámetro de la barra
30 cm
Si adoptamos
s
Ø 10mm sep. máx.=25cm
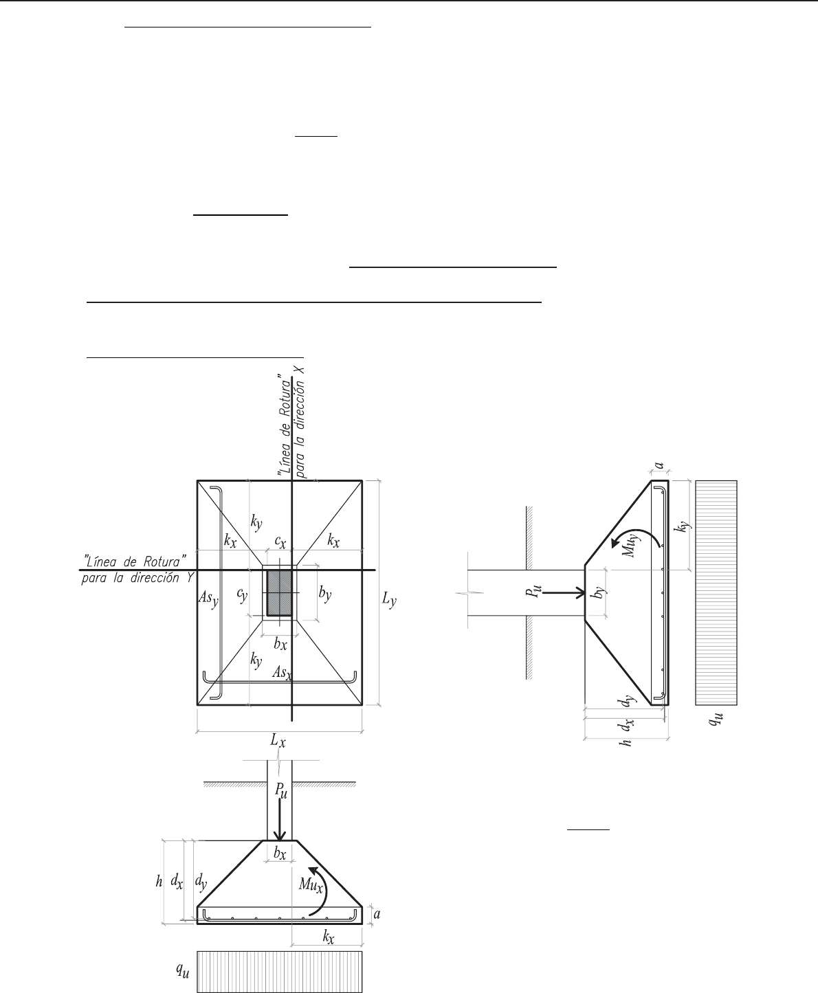
ara la dirección X-X-
sta armadura debe distribuirse en el ancho “ ”al que le debemos restar el
recubrimiento de la armadura de ambos lados de la base, es decir 2x5cm=10cm. Con
lo cual el ancho disponible para repartir la armadura será 2,10m-0,10m=2,00m
Si debemos colocar 13 barras tendremos 12 espacios de
s= 2,00m/12=0,16m=16cm
s decir que cumplimos con la separación máxima ya que :
=separación=separación máxima=0,25m
O sea que la armadura en la dirección X-X
O sea que la armadura en la dirección Y-Y será: 9Ø12 separadas c/25cm
-
será: 13Ø12 separadas c/16cm.
ara la dirección
Y-Y:
sta armadura debe distribuirse en el ancho “ ”al que le debemos restar el
recubrimiento de la armadura de ambos lados de la base, es decir 2x5cm=10cm. Con
lo cual el ancho disponible para repartir la armadura será 2,10m-0,10m=2,00m
Si debemos colocar barras tendremos
9
8 espacios de s=2,00m/8=0,
25
m=25cm.
s decir que
cumplimos con la separación máxima
ya que :
=separación=separación máxima=0,25m
2
s
x
A14cm
2
13Ø12 14,70cm
y
L
2
s
y
A 9,84cm
2
9Ø12 10,17cm
x
L
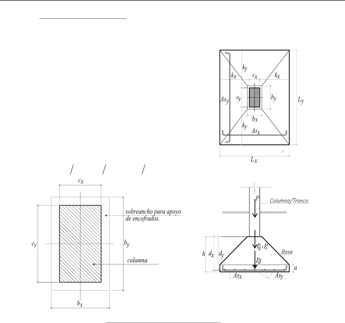
2,5 .h=2,5 veces el espesor de la base
n nuestro se trata de una base cuadrada: L=B o sea Lx=Ly
Ing. Ricardo Taba
ESTRUCTURAS 2 - Cát. DIEZ - FADU - UBA