
2
s
y
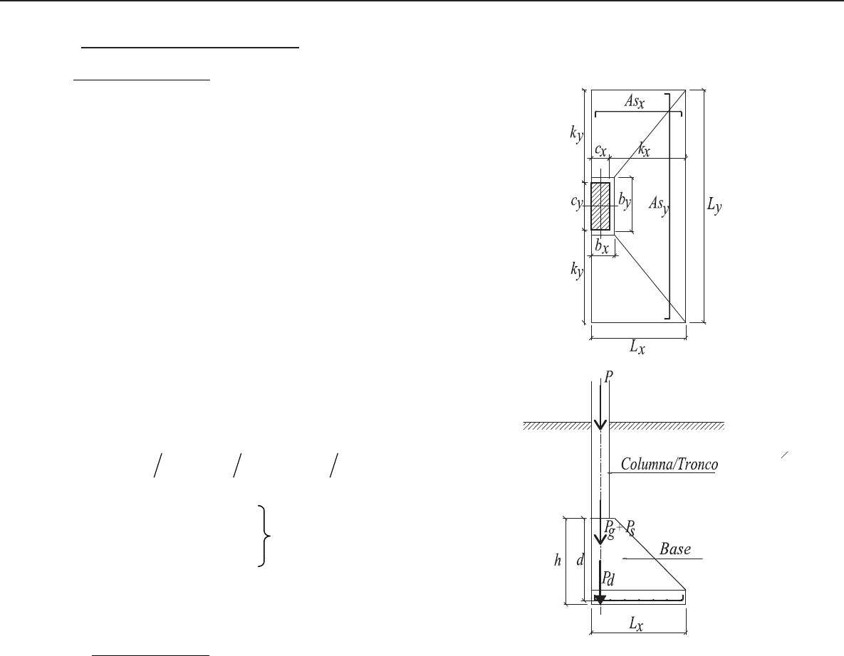
A10,20cm
ara la dirección Y-Y ( la dirección más larga)
adoptamos: 10Ø12=11,30cm
2
sta armadura debe distribuirse en el ancho
al que debemos restar el recubrimiento
de la armadura de ambos lados de la base, es decir 2x5cm=10cm. Con lo cual el ancho
disponible para repartir la armadura será de 1,30m-0,10m=1,20m.
a separación máxima será en este caso 25.Øs=25.12mm=300mm=0,30cm.
Si debemos colocar 10 barras tendremos 9 espacios de s=1,20m/9= 0,13m
s decir que cumplimos con la separación máxima=30cm
doptamos entonces para la dirección Y-Y: 10Ø12 separadas cada 13cm.
2
x
As 16,10cm
ara la dirección X-X (la dirección más corta)
a). Faja central de ancho Lx.
22
xx
1
22
As As 16,95cm 11,30cm 10Ø12
121
sta armadura debe distribuirse en el ancho
en forma simétrica con
respecto al eje de la columna.
Separación de las barras s=1,30m/9 espacios= 14,5cm cumple con la separación
máxima.
LLy2,60
2
BLx1,30
En nuestro caso:
Ing. Ricardo Taba
ESTRUCTURAS 2 - Cát. DIEZ - FADU -UBA